Back to property list

4 Bedroom House For Sale - New Road, Clifton, SG17

£800,000 Guide Price
home House
House for sale SOLD STC
bedrooms 4
bathrooms 4
reception rooms 2

Property Features

  • Freehold
  • Detached

Property Details

Property Insight:

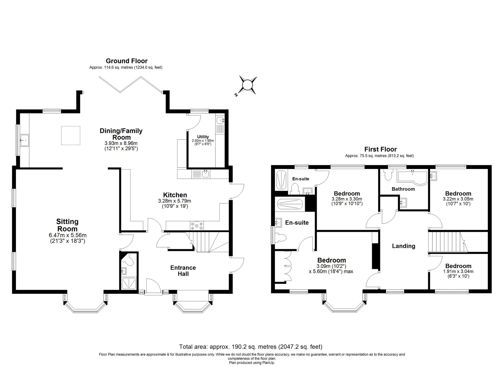
Set in the popular village of Clifton, this exquisite period property has been thoughtfully extended and remodelled to create an elegant and spacious home which is perfectly suited to modern family life.

From the moment you set eyes upon The Dairy, this home creates a striking impression. With its attractive façade and extensive, gated driveway, first impressions of the property set great expectations for the interior.  And it certainly doesn’t disappoint!  The solid oak front door opens into a wide entrance hall finished with marble-effect floor tiles and calming, neutral tones.  The entrance hall sets an air of quiet and spacious luxury that flows throughout the entire property.  From the beautiful oak staircase with glass balustrade to the stylish chrome electrical fittings, great attention has been paid to the finishing details throughout.

At the heart of the home lies a stunning, and incredibly spacious, open-plan kitchen/dining/family room - a light-flooded space that’s perfect for entertaining friends or simply gathering as a family.  The kitchen features sleek Shaker-style cabinetry in soft grey tones, complemented beautifully by white quartz worktops and marble-effect floor tiles.  Integrated appliances include double wall-mounted electric ovens, an induction hob and fridge-freezer.  The expansive dining/family area features vaulted ceilings, skylights and more than ample space for a large dining table and chairs.  Wide bi-fold doors open directly on to the patio and garden, making it a fantastic setting for summer entertaining.   With plenty of storage and even an additional sink, this fantastic showpiece space is as practical as it is stylish. 

The generous sitting room leads off from the dining/family area and offers a more relaxed, yet equally stylish, atmosphere.  This dual-aspect room enjoys large windows that fill the space with natural light, including an attractive bay window – one of the original features of the house.  Decorated in elegant neutrals with a plush dove-grey carpet, the room has some lovely features, including a bespoke bookcase and a log burner, which is wonderful for curling up in front of during the winter months.  It’s a calm and comfortable room, ideal for unwinding after a busy day or enjoying family evenings together.  Completing the downstairs are a modern utility and cloakroom - handy additions for any busy family.

Upstairs, the sense of light and space continues. A spacious landing leads off to four well-proportioned bedrooms (three double bedrooms and one single) which are beautifully presented in soft, neutral tones. The large principal suite benefits from a dressing area with built-in wardrobes, bay window and a fully tiled, contemporary ensuite shower room with walk-in shower and modern white suite.  It’s a peaceful retreat, ideal to relax and unwind at the end of the day.  The guest bedroom is another airy room with plenty of space for furniture and its own fully tiled, contemporary, ensuite shower room. The third double bedroom features an attractive panelled feature wall, whilst the generous single bedroom would also make a fantastic home office.  The stunning family bathroom is finished in striking marble-effect tiles with a contemporary white suite, including a full-size bath with shower over, creating a luxurious spa-like feel.

Outside, the 108’ x 71’ east-facing garden is a lovely feature. A large, paved terrace provides the perfect spot for morning coffee or summer dining, leading down to a large lawn bordered by mature hedging for privacy. It’s an ideal space for children to play or enjoy a spot of football practice.  It’s also a fabulous setting for entertaining friends on warm evenings.

A wide, gated gravel driveway provides secure off-road parking for several vehicles, completing this superb family home.  Offered chain-free. This property has recently expired planning permission for a double garage and additional bedroom in addition to a study/playroom (CB/22/04536/FULL). The Dairy combines elegance, flexibility and modern comfort in one of Clifton’s most desirable village settings.

The property is offered with NO ONWARD CHAIN and is available immediately.

Location:

Clifton is a welcoming and picturesque Bedfordshire village which is popular amongst families.  The village has a strong community spirit and hosts a number of local events, including the annual Clifton May Day Festival.  Local amenities include a village school, post office, pub, beauty salon, Tesco Express and Indian restaurant, and if you fancy a spot of pampering, Champneys Henlow Grange is just minutes away.  If you are into outdoor activities, Clifton has plenty to offer, including a recreation ground, play areas, cricket club and tennis club as well as plenty of local countryside walks and cycle routes. 

You’re only a few minutes away from the historic market town of Hitchin with its cosmopolitan town centre and wealth of restaurants, bars and boutiques. Clifton has good transport links, being relatively close to the A1(M) and M1 motorways, as well as a short drive or bike ride away from Arlesey station with direct trains to London Kings Cross.

Book your Viewing

James Estate Agent in Hitchin
14 Day Contract

“It’s so important to find out how much your home is really worth. If you are considering selling your home, Nick or I would be delighted to offer you an accurate valuation and an update on current market conditions. Simply enter a few brief details and we will be in touch to arrange a convenient time to visit you.”

James Evans, our Estate Agent in Hitchin


4 Bedroom House For Sale - New Road, Clifton, SG17 Floor Plan
Property Location in Shefford
Shefford

A little about
Shefford


Shefford is a thriving market town with a welcoming community spirit. Nestled in the Bedfordshire countryside, it offers a perfect balance of rural charm and modern convenience. Excellent transport links make Shefford a desirable location, with easy access to the A1(M) and A6, connecting residents to nearby towns such as Hitchin, Letchworth and Bedford for a broader range of shopping, dining and leisure facilities. The town itself boasts a variety of local amenities, including independent shops, highly regarded schools, and popular pubs such as The White Hart.

Shefford is surrounded by beautiful green spaces, with scenic countryside walks and nature reserves providing the ideal escape from the hustle and bustle of daily life. As its popularity continues to grow, Shefford attracts homebuyers looking for a well-connected yet peaceful place to call home. Whether you're searching for your first property, moving to accommodate a growing family, or considering selling, Hitchin estate agent Wellington Evans has the local expertise to guide you through the process. With an in-depth knowledge of the Shefford property market and a commitment to outstanding service, we can help you find your ideal home or achieve the best possible price for your property.

Read more about Wellington Evans – Estate Agents in Shefford.

Looking to sell a similar home?

Book your valuation
House Purchase in Apostles
5 Star Rating
“I can recommend the services of Wellington Evans unreservedly and without hesitation. James was consistently responsive, proactive and professional whilst also very personable. To us as purchasers, James felt like an honest broker between ourselves and the vendor. He worked brilliantly well with our solicitor, Elite Conveyancing, and the vendor, navigating a number of bumps along the road to achieve our completed transaction in around 2 months from initial viewing.”
Elaine Baker, House Purchase in Apostles February 2024
House Sale in Quadrant
5 Star Rating
“I used Wellington Evans to sell a property, they went above and beyond for what was a complicated process at times. We had used a different agency previously, and not had much interest. When WE came in, we made a plan to refresh the property and marketing approach which saw many more viewers and an offer. James was great at helping me figure out the next best move and the advice they gave from start to finish was excellent. Lovely, supportive and involved team, who I wouldn't hesitate to recommend and use again myself.”
Vicky, House Sale in Quadrant March 2024
House Sale in Hitchin
5 Star Rating
“Best estate agent we’ve ever had. We went on a bit of a journey with our house and Nick was always positive, pro-active and completely open with us along the way. He and James are vastly experienced but their modern approach sets them apart. You can tell they really care about what they do. It’s not just about selling houses, it’s about helping people move home and doing what’s best for the situation. If you want an estate agent that’s in your corner, we’d recommend Nick and Wellington Evans in a heartbeat.”
Mark Teece, House Sale in Hitchin November 2023
Book your viewing Call