Back to property list

4 Bedroom House For Sale - Off Graves Paddock, Bates Ave, SG15

£700,000 Guide Price
home House
House for sale For Sale
bedrooms 4
bathrooms 3
reception rooms 2

Property Features

  • Freehold
  • Detached

Property Details

Property Insight:

As you step inside The Twinberry, it immediately feels spacious and stylish.  Luxurious herringbone Amtico flooring runs through most of the ground floor and is delightfully warm underfoot, thanks to underfloor heating.  A handy storage cupboard in the entrance hall provides a convenient place to hide away coats and shoes.

The kitchen/family room is the heart of the home and the perfect place for enjoying family time together.  The contemporary kitchen has been thoughtfully designed and features sleek cabinetry with coordinating quartz work surfaces.  The integrated Bosch appliances include an electric oven, 5-zone induction hob, microwave, dishwasher, full-height fridge and full-height freezer.  The open plan space benefits from LED lighting as well as a 3-in-1 instant boiling, hot, and cold-water tap and the breakfast bar provides the perfect spot to sit and enjoy that first coffee of the morning or perhaps an evening glass of wine.  The family room has ample space for a table and chairs and is flooded with natural light, thanks to its French doors which open directly onto the patio.  The seamless flow between indoors and out provides the perfect set up for summer entertaining or simply keeping an eye on children playing in the garden.

The separate dining room is an elegant space for entertaining family and friends but could be easily repurposed as a playroom or snug.  Dual aspect, with an attractive box bay window and neutral carpet, it’s a highly versatile room which is lovely and bright.   

The dual aspect sitting room provides a peaceful retreat to relax and unwind after a busy day.  With a plush neutral carpet and plenty of space for adding a couple of comfy sofas plus additional furniture, its calm and welcoming atmosphere is an ideal setting for relaxing with family or hosting guests.  French doors open onto the patio and garden, again creating a practical set up for enjoying the house during the summer months.  A modern cloakroom with contemporary white Roca suite completes the downstairs.

On the first floor are three double bedrooms with neutral colour schemes and carpets.  The principal bedroom is a spacious, dual aspect double featuring a large built-in wardrobe and ensuite shower room with vanity unit, modern Roca sanitaryware, Porcelanosa tiles and heated chrome towel radiator.  The other two bedrooms on this floor are equally well-proportioned and airy, bright rooms.  The family bathroom features Porcelanosa tiles and a modern white Roca suite, including a vanity unit and full-size bath with shower over.  Completing the second floor is a convenient and ideally situated laundry room.

On the second floor is a spacious guest suite attractively built into the eaves, featuring built-in wardrobes and an ensuite shower room in a similar contemporary style with a high-quality Roca suite.  Also on this floor is a study – the perfect, peaceful solution to working from home – and a large storage cupboard.

Outside, the garden features lawned and patio areas - it’s ideal for relaxing, entertaining and for children to play, and is ready for you to landscape as you wish.  The front garden features herbaceous borders and a block-paved driveway providing off-street parking in front of the garage.

Complete with modern technologies, including an air source heat pump and Heatmiser app-controlled thermostat, The Twinberry is a stylish and versatile family home which offers a luxurious blank canvas ready to move straight into.

Please note the photographs are taken of the same house type at a different development, so the position of the house will vary.

Please note photographs and virtual tours may be from similar properties marketed by Cala Homes Ltd and are for guidance only. CGI’s are for guidance only. Incentives (if any are advertised) are subject to terms and conditions and may be withdrawn at any time.

Location:

Samuel Gardens is a brand-new housing development by Cala. Set in the popular location of Arlesey, Bedfordshire, Samuel Gardens is ideal for families, with beautiful green spaces and natural play areas on its doorstep, as well as highly regarded schools just a short distance away.Arlesey enjoys a strong sense of community and has been named 'Bedfordshire’s most popular commuter town'. Despite its tranquil setting, the village is exceptionally well-connected, with a mainline station providing direct trains to London St Pancras in under 40 minutes. The A1(M) is a short drive away, while the nearby towns of Letchworth and Hitchin offer a wider range of transport links, shopping, dining and leisure facilities.  Local amenities include several shops and the historic White Horse pub.  

These particulars are intended to give a fair and reliable description of the property but no responsibility for any inaccuracy or error can be accepted and do not constitute an offer or contract. We have not tested any services or appliances (including central heating if fitted) referred to in these particulars and the purchasers are advised to satisfy themselves as to the working order and condition. If a property is unoccupied at any time there may be reconnection charges for any switched off/disconnected or drained services or appliances - All measurements are approximate.

Book your Viewing

James Estate Agent in Hitchin
14 Day Contract

“It’s so important to find out how much your home is really worth. If you are considering selling your home, Nick or I would be delighted to offer you an accurate valuation and an update on current market conditions. Simply enter a few brief details and we will be in touch to arrange a convenient time to visit you.”

James Evans, our Estate Agent in Hitchin


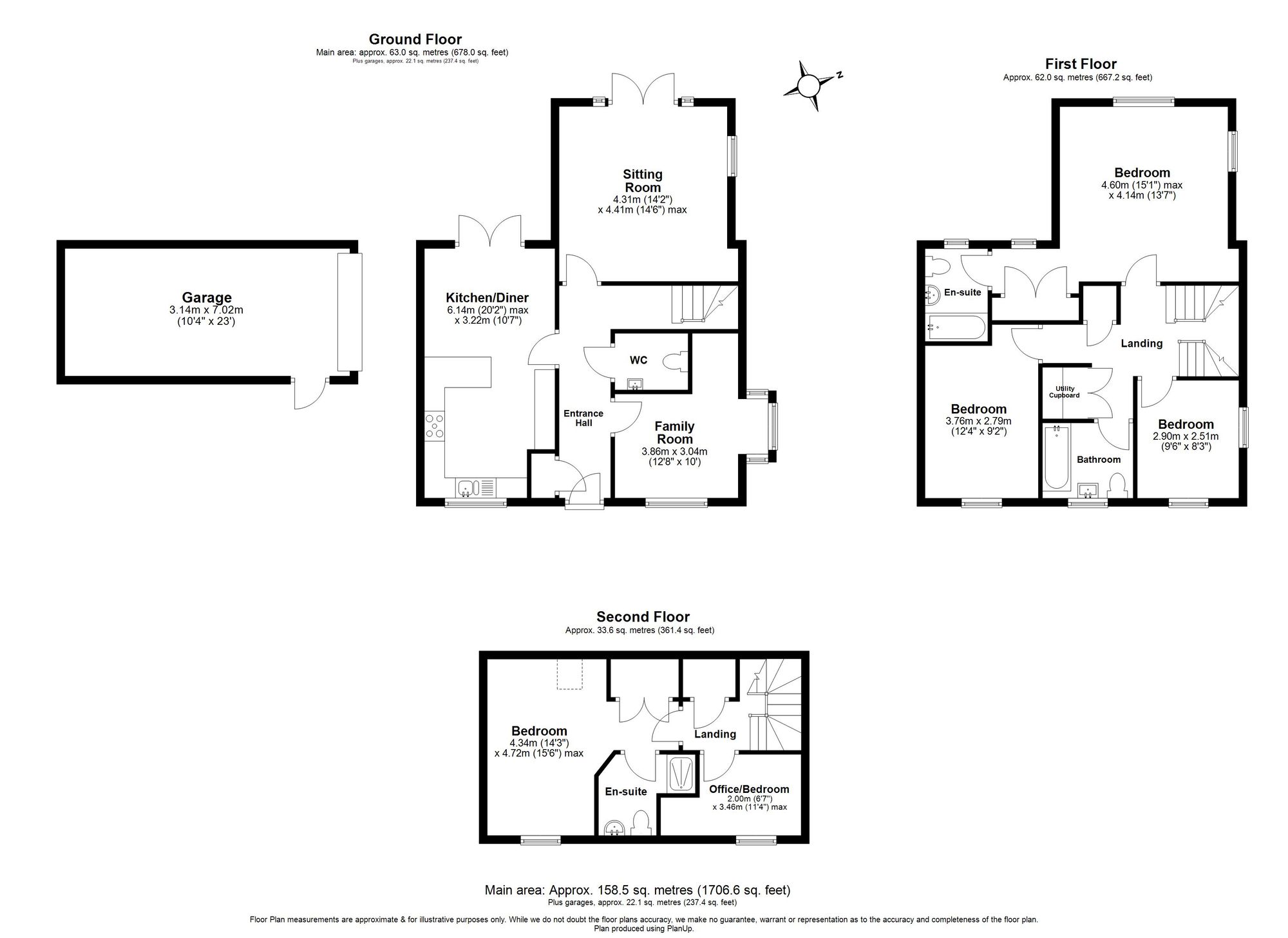
4 Bedroom House For Sale - Off Graves Paddock, Bates Ave, SG15 Floor Plan
Property Location in Arlesey
Arlesey

A little about
Arlesey


Arlesey is a popular village with a strong sense of community. Despite its tranquil setting, the village is exceptionally well-connected, with a mainline station providing direct trains to London St Pancras in under 40 minutes. The A1(M) is a short drive away, while the nearby towns of Letchworth and Hitchin offer a wider range of transport links, shopping, dining and leisure facilities. Local amenities include several shops, a highly regarded primary school, and the historic White Horse pub.

Arlesey also boasts an abundance of green spaces, with scenic countryside walks and nearby nature reserves offering the perfect escape from busy daily life. The village continues to grow in popularity, attracting homebuyers looking for a balance between rural charm and modern convenience. Whether you're searching for your first home, upsizing to accommodate a growing family, or considering selling, Hitchin estate agent Wellington Evans has the local expertise to guide you through the process. With an in-depth knowledge of the Arlesey property market and a commitment to exceptional service, we can help you find the perfect home or secure the best possible price for your property.

Looking to sell a similar home?

Book your valuation
House Purchase in Apostles
5 Star Rating
“I can recommend the services of Wellington Evans unreservedly and without hesitation. James was consistently responsive, proactive and professional whilst also very personable. To us as purchasers, James felt like an honest broker between ourselves and the vendor. He worked brilliantly well with our solicitor, Elite Conveyancing, and the vendor, navigating a number of bumps along the road to achieve our completed transaction in around 2 months from initial viewing.”
Elaine Baker, House Purchase in Apostles February 2024
House Sale in Quadrant
5 Star Rating
“I used Wellington Evans to sell a property, they went above and beyond for what was a complicated process at times. We had used a different agency previously, and not had much interest. When WE came in, we made a plan to refresh the property and marketing approach which saw many more viewers and an offer. James was great at helping me figure out the next best move and the advice they gave from start to finish was excellent. Lovely, supportive and involved team, who I wouldn't hesitate to recommend and use again myself.”
Vicky, House Sale in Quadrant March 2024
House Sale in Hitchin
5 Star Rating
“Best estate agent we’ve ever had. We went on a bit of a journey with our house and Nick was always positive, pro-active and completely open with us along the way. He and James are vastly experienced but their modern approach sets them apart. You can tell they really care about what they do. It’s not just about selling houses, it’s about helping people move home and doing what’s best for the situation. If you want an estate agent that’s in your corner, we’d recommend Nick and Wellington Evans in a heartbeat.”
Mark Teece, House Sale in Hitchin November 2023
Book your viewing Call