Back to property list

4 Bedroom House For Sale - Pollards Way, Lower Stondon, SG16

£525,000 Offers Over
home House
House for sale SOLD STC
bedrooms 4
bathrooms 2
reception rooms 4

Property Features

  • Freehold
  • Detached

Property Details

Property Insight:

This four-bedroom property is wonderfully bright and inviting.  A versatile family home, it has a welcoming atmosphere and a fantastic amount of space.

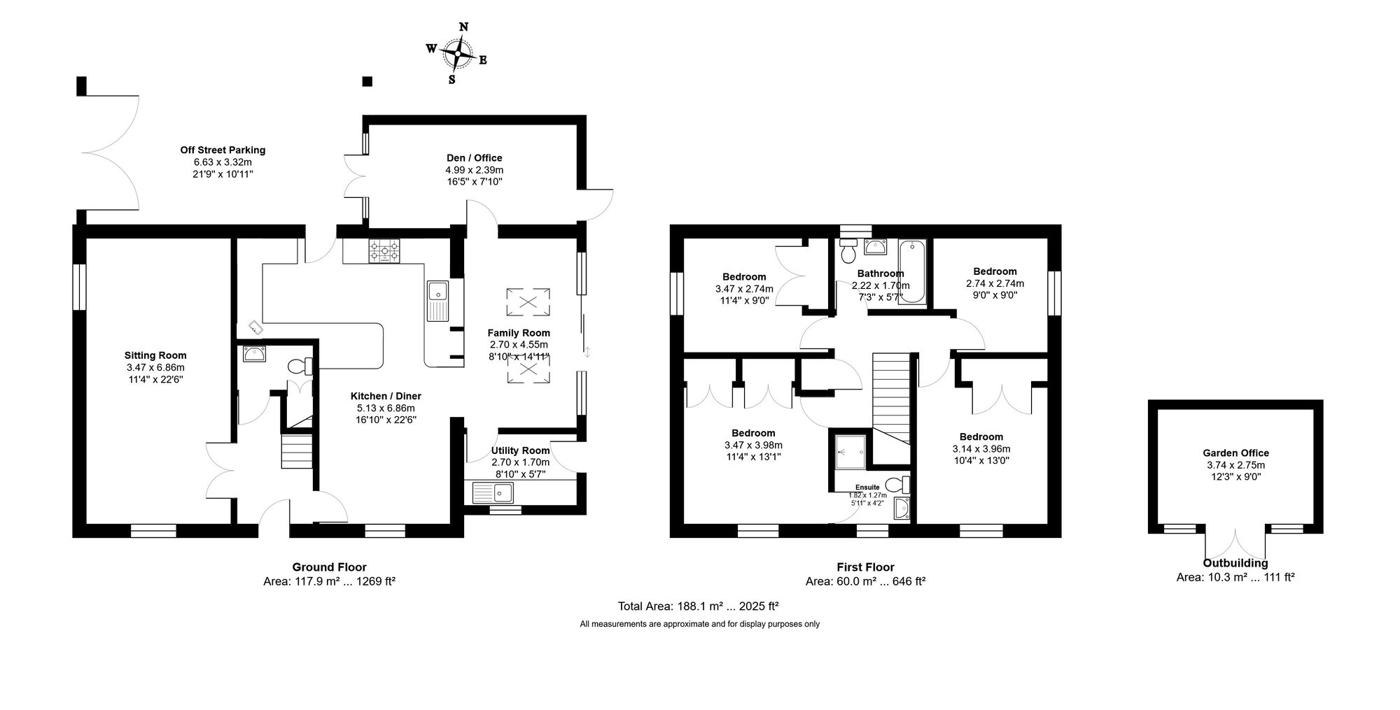
As you enter the property, it immediately feels bright and welcoming.  The wooden flooring in the hallway is a feature throughout the house, creating a lovely flow and contributing to the warm atmosphere.  To the right of the entrance hall is a stunning open-plan kitchen/dining room/family room.  Decorated in a sunny hue, this is the heart of the house and the perfect space for family living and entertaining.  The kitchen is contemporary in style with high-gloss grey cabinetry, contrasting worktops and a stainless-steel sink.  The impressive range cooker has gas burners and multiple electric ovens, plus a stainless steel and glass wall-mounted hood.  Featuring an impressive amount of storage and lovely garden views, it’s the perfect kitchen for keen chefs and fantastic for entertaining. 

The kitchen opens on to a dining area which has plenty of room for a large table and chairs, and provides the perfect opportunity for hosting friends and family.  The adjoining, open-plan family room is lovely and bright, thanks to its large, glazed sliding doors and multiple skylights.  This spacious room is perfect for enjoying time together as a family and it’s also a dream set up if you enjoy hosting summer barbecues or parties, with the doors opening directly on to the patio outside.  Located behind the family room is a sizable and versatile room that is currently being used as a den for teens, also with access to the garden via a glazed door.  This room would make an equally great playroom for young children, office, workshop or craft room and conveniently has its own entrance as well as access to the garden. 

On the other side of the house is a large, dual aspect sitting room which enjoys plenty of natural light.  Decorated in a lovely calming blue tone, this is the perfect place to relax after a busy day.  Over 22 feet in length, this impressive room has more than enough space for adding furniture and personalising to create a cosy and attractive setting to unwind in.  Completing the downstairs is a handy cloakroom as well as a utility, which has space for a washing machine and tumble dryer.  The utility also has access to the garden via a glazed door.

Upstairs are four well-proportioned double bedrooms, decorated in calming pastel tones.  The spacious principal bedroom features built-in wardrobes and its own ensuite shower room with neutral mosaic tiles and a modern, white suite.  Two of the other bedrooms also have built-in wardrobes and all are bright and airy, comfortable rooms.  The family bathroom features pale blue mosaic tiles and a white suite, including a full-size bath with shower over.

Outside, the property has a good size, landscaped garden which features both lawn and patio areas, providing spaces for both entertaining and for children to play.  There is a large garden office which offers a versatile space for either working or hobbies.  To the side of the house is a gated driveway providing secure parking, as well as an EV charging point. 

This is a fantastically versatile, spacious family home in popular village setting that we guarantee won’t be on the market for long!

Location:

Lower Stondon boasts a variety of amenities, including a well-regarded golf club, local shops and pubs.  With Arlesey station close by, it’s an ideal location for commuters.  You’re also only a few minutes away from the historic market town of Hitchin with its cosmopolitan town centre and wealth of restaurants, bars and boutiques. Surrounded by picturesque countryside, Lower Stondon is ideal for those who enjoy outdoor activities, with plenty of walking and cycling trails in the local area.  Families are well-catered for, with good local schools, a strong sense of community, and regular events and activities.  

These particulars are intended to give a fair and reliable description of the property but no responsibility for any inaccuracy or error can be accepted and do not constitute an offer or contract. We have not tested any services or appliances (including central heating if fitted) referred to in these particulars and the purchasers are advised to satisfy themselves as to the working order and condition. If a property is unoccupied at any time there may be reconnection charges for any switched off/disconnected or drained services or appliances. All measurements are approximate.

Book your Viewing

James Estate Agent in Hitchin
14 Day Contract

“It’s so important to find out how much your home is really worth. If you are considering selling your home, Nick or I would be delighted to offer you an accurate valuation and an update on current market conditions. Simply enter a few brief details and we will be in touch to arrange a convenient time to visit you.”

James Evans, our Estate Agent in Hitchin


4 Bedroom House For Sale - Pollards Way, Lower Stondon, SG16 Floor Plan
Property Location in Henlow
Henlow

A little about
Henlow


Henlow is a picturesque village straddling the borders of Hertfordshire and Bedfordshire, offering the best of both rural tranquillity and easy access to nearby towns. Located just 6.7 miles from Hitchin, 6.3 miles from Letchworth Garden City, and 13 miles from Bedford, the village is ideally positioned for both peaceful living and convenient commuting. Transport links are excellent, with Arlesey railway station only 2.9 miles away. The station offers direct services to London King's Cross in under 40 minutes, making it a great option for commuters. For road travel, Henlow is well connected by the A1(M) and the M1, providing easy access to nearby towns and cities.

Henlow is an ideal choice for families, with two highly regarded schools in the village. The community is close-knit, with three pubs and also offers a variety of outdoor spaces, parks, and recreational facilities popular with families and dog walkers. Outdoor enthusiasts will appreciate the scenic walks and bridleways connecting Henlow to surrounding villages, ideal for those who enjoy exploring the countryside.

Whether you're searching for your first property, moving to accommodate a growing family, or considering selling, as a Hitchin estate agent we have the local expertise to guide you through the process and can help you find your ideal home or achieve the best possible price for your property.

Looking to sell a similar home?

Book your valuation
House Purchase in Apostles
5 Star Rating
“I can recommend the services of Wellington Evans unreservedly and without hesitation. James was consistently responsive, proactive and professional whilst also very personable. To us as purchasers, James felt like an honest broker between ourselves and the vendor. He worked brilliantly well with our solicitor, Elite Conveyancing, and the vendor, navigating a number of bumps along the road to achieve our completed transaction in around 2 months from initial viewing.”
Elaine Baker, House Purchase in Apostles February 2024
House Sale in Quadrant
5 Star Rating
“I used Wellington Evans to sell a property, they went above and beyond for what was a complicated process at times. We had used a different agency previously, and not had much interest. When WE came in, we made a plan to refresh the property and marketing approach which saw many more viewers and an offer. James was great at helping me figure out the next best move and the advice they gave from start to finish was excellent. Lovely, supportive and involved team, who I wouldn't hesitate to recommend and use again myself.”
Vicky, House Sale in Quadrant March 2024
House Sale in Hitchin
5 Star Rating
“Best estate agent we’ve ever had. We went on a bit of a journey with our house and Nick was always positive, pro-active and completely open with us along the way. He and James are vastly experienced but their modern approach sets them apart. You can tell they really care about what they do. It’s not just about selling houses, it’s about helping people move home and doing what’s best for the situation. If you want an estate agent that’s in your corner, we’d recommend Nick and Wellington Evans in a heartbeat.”
Mark Teece, House Sale in Hitchin November 2023
Book your viewing Call